Musterhaus EFH - Einfamilienhaus - Giebelhaus163 m²
Gemütlichkeit steht hoch im Kurs.
So charmant kann gemütliches Wohnen sein. Das großzügige Giebelhaus ist ein wahres Kleinod der Gemüdlichkeit: Lichtdurchflutet, mit einem schönen Satteldach gekrönt, bietet es viel Platz für Fantasie bei der Gestaltung vom Boden bis unter den Giebel.
Wo Licht ist , ist auch Leben.
Für diese Weisheit ist das Giebelhaus gebaut.
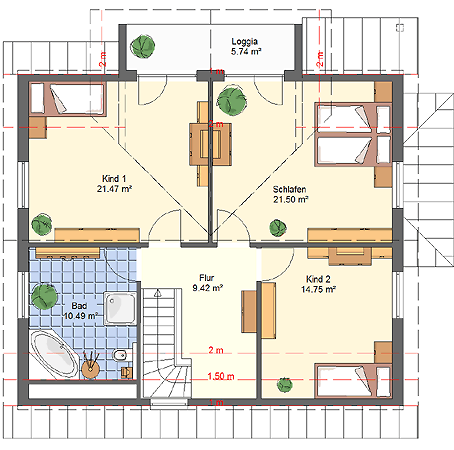
Der großzügige Wohn und Essbereich mit mehreren Terrassentüren dürfte schnell
zum lebendigen Mittelpunkt der ganzen Familie werden. Wenn Oma zu Besuch kommt, ist noch Platz im feinen Gästezimmer.
EG + DG 163 m² nach DIN
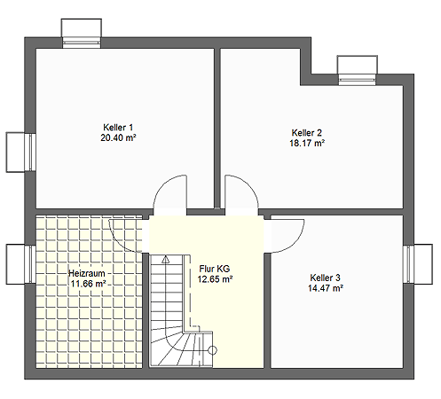
Auch mit Keller möglich.
Individuelle Umplanungen möglich!
Auch mit Keller möglich.
Individuelle Umplanungen möglich!
Zum Vergrößern klicken Sie bitte auf das jeweilige Bild.
